Skøn, lys og rummelig ejendom til salg.
Møllegyden 37 byder på mange indendørs m2 og et kæmpe udenomsområde på over 7200m2. Grunden er fyldt med træer hvoraf mange er frugttræer (æbler, pærer).

MØLLEGYDEN 37
Denne skønne bolig er perfekt til familien der ønsker at bo i rolige, grønne omgivelser men stadig tæt ved indkøb, idrætshal, forsamlingshus osv.
Ejendommen ligger i idylliske omgivelser med de skønneste udsigter over marker og den ligger tilbagetrukket fra vejen. Husets placering betyder at man på forsiden af huset har de mest fantastiske solopgange og på bagsiden vidunderlige solnedgange. Her er hverken motorvejsstøj eller lysforurening. Her får du både ro og nærhed til indkøbsmuligheder.
BOLIGEN
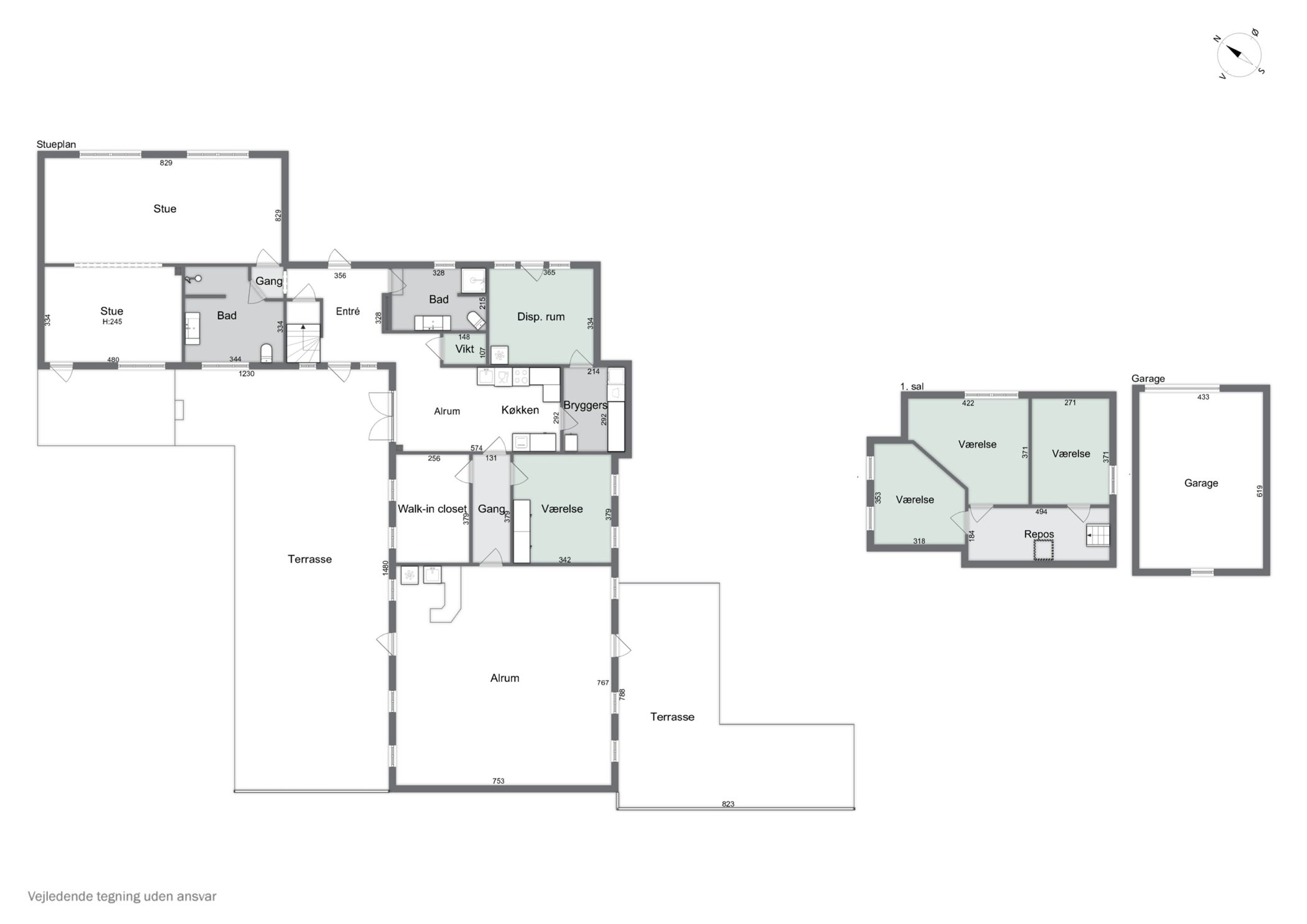
Vores fine og indflytningsklare hus indeholder entre med flot trappeløb til 1. salen, dejlig stor spisestue med skøn udsigt over marker og i åben forbindelse med opholdsstuen.
Opholdsstuen, med synlige bjælker, har udsigt til de smukkeste solnedgange og har udgang til den dejlige ugenerte terrasse. De store vinduespartier og døre sikrer et skønt lysindfald og en dejlig atmosfære.
Videre fra entreen er der 2 store flotte badeværelser, begge med bruseniche, hyggeligt køkken med god spiseplads hvor udsigten over haven kan nydes og med udgang til terrassen.
Videre fra køkkenet er der en fordelingsgang med stort værelse, walk-in garderobe og til den store gildesal (ikke en del af boligarealet). Fra gildesalen er der udgang til begge terrasser.
Fra køkkenet er der også adgang til en baggang/vaskerum med plads til vaskemaskine og tørretumbler. Baggangen fører videre til fyrrummet med pillefyr og fra fyrrummet er der direkte adgang til garagen.
På 1. salen er der repos, 1 værelse med den skønneste udsigt over haven og søen, 1 værelse med en fantastisk udsigt over marker og 1 værelse med udsigt til haven.
Der er gulvvarme i køkken, entre og et badeværelse.
Ejendom med plads og natur.
GRUNDEN
Denne hyggelige villa har en stor grund med plads til shelter, bålplads, mindre dyrehold, selvforsyning, campingvogne osv.
Her er god plads til leg, terrassemiljø og udeliv. Haven har mange gamle frugttræer. Den er ‘Vild med vilje’ og er derfor nem at passe. Vi har aldrig brugt gift. Haven har også en smuk beskyttet sø.
Her er meget lidt trafik og et godt lokalsamfund.
Skolebussen stopper udenfor døren.
FAKTA
Pris 1.995.000 kr. Åben for seriøse bud ved hurtigt salg.
Ejerudgift ca. 1.994 kr. pr. md.
BOLIGEN
Boligareal 225 m2
Grundareal 7.249 m2
Øvrige arealer: 70 m2
( bla. Walk-in og gildesal )
Garage 32 m2
( I forbindelse med huset )
Garage (I haven) 32 m2
___________________________________________________


Boligen er indflytningsklar og står med:
Tilstandsrapport
El-eftersynsrapport
Energimærke (E)
___________________________________________________
Alment vandforsyningsanlæg
Spildevandskloakeret
Pillefyr fra 09/2017 (træpiller kan blive leveret til garageporten af lokal mand)
Fibernet
___________________________________________________


GRUNDEN
Der er en beskyttet sø
2 ugenerte terasser
Hyggelig gårdsplads
Parkering til 4+ biler
Fin plads til campingvogne og trailere
___________________________________________________
BELIGGENHED:
Ca. 11 minutter til motorvejsafkørslerne Aarup (10,5 km) og Ejby (10,8 km)
Der er togstationer i Aarup og Ejby.
Ca 25 km til Middelfart og 22 km til Tarupcentret i Odense
Ca. 3 km fra Hårslev by med Kirke, Idrætshal, forsamlingshus osv.
Ca. 4.5 km til Harndrup Brugs og forsamlingshus.
Ca. 10 km til Bogense havneby,
Tæt på bademuligheder eks. Varbjerg strand, Bogense Søbad og Bogense Marina Strand
Til Middelfart kommune grænse er der 2,3 km
Til Assens kommune grænse er der 7,6 km
INFORMATIONER OM OMRÅDET:
Video om Nordfyns kommune skønne områder
Vi synes selv det er en flot og spændende ejendom, lige til at flytte ind i.
Hurtig overtagelse muligt.
Hårde hvidevarer kan medfølge.
Kan besigtiges alle ugens dage ved henvendelse via kontaktformen eller på telefon +45 5010 2265.










































































